こんにちは、和歌山の工務店 三幸建設です。
前回のブログでは基礎工事の様子をご紹介しましたが、
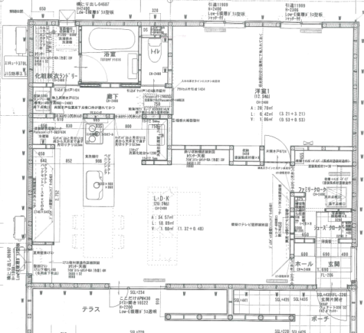
今回いよいよ和歌山で建てる新築平屋の家が、大きく前進しました。
このたび無事に「上棟(じょうとう)」が完了です!
上棟とは、柱や梁(はり)などを組み上げて、建物の骨組みが立ち上がる節目の工程。
これまで図面でしか見えなかった「家のかたち」が、実際に目の前に現れる感動の瞬間です。

作業中は、大工さんたちが息を合わせて柱を立て、梁を組み上げていく様子に、現場も活気に包まれました。
そして今、現場ではさっそく外壁工事の準備がスタートしています。

今回採用しているのは、職人の手で仕上げる「湿式外壁」。
和歌山の気候にも合った、落ち着きのある上質な外観に仕上がる予定です。
このあとは、屋根や断熱材の施工、サッシの取り付けなど、
快適に暮らせる平屋づくりに欠かせない工程が続いていきます。
今後も、「和歌山で新築を検討している方」「平屋住宅に興味がある方」に向けて、
わかりやすく情報をお届けしていきますので、ぜひ引き続きご覧ください!